Axce’s 01V2 | 3 chambres & Garage

  • Axces Habitat Constructeur De Maison En Bretagne AX1 AVANT
  • Axces Habitat Constructeur De Maison En Bretagne AX1v2
  • Axces Habitat Constructeur De Maison En Bretagne AX1v2 cusine
  • Axces Habitat Constructeur De Maison En Bretagne AX1v2 salon
  • Axces Habitat Constructeur De Maison En Bretagne AX1v2
  • Axces Habitat Constructeur De Maison En Bretagne AX1v2

Référence:

 axces1v2

Chambre(s)
3
SDB/SDE
1
Stationnement(s)
1
Superficie
73

Description

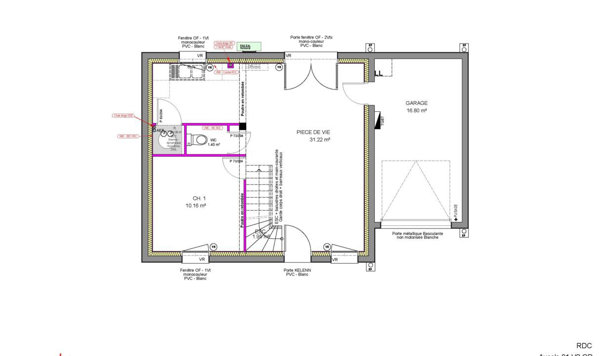
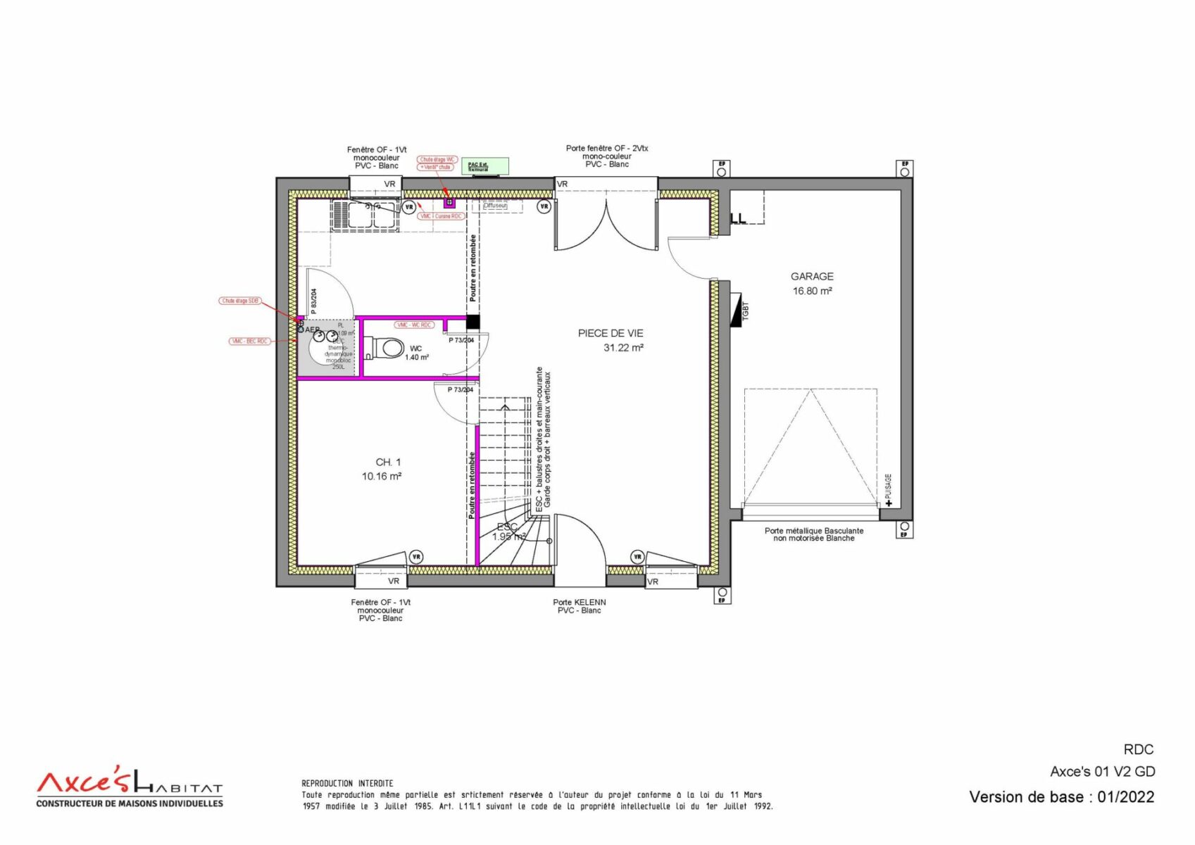
La maison à étage AXCES 01v2 de 73 m² habitables (102 m² utiles) propose un agencement moderne, idéal pour une vie de famille équilibrée entre espace de vie et coin nuit.

Caractéristiques principales :

  • Au rez-de-chaussée :

    • Pièce de vie de 33 m² avec cuisine ouverte, pour un espace lumineux et chaleureux.

    • Une chambre, pratique pour une suite parentale ou une chambre d’amis.

    • WC indépendant, pour plus de confort.

  • À l’étage :

    • Deux chambres confortables, parfaites pour les enfants ou un espace bureau.

    • Salle de bains moderne et WC séparés, pensés pour le quotidien.

  • Garage intégré, idéal pour le stationnement ou du rangement supplémentaire.

  • Chauffage par pompe à chaleur, alliant confort thermique et économies d’énergie.

  • Construction conforme à la norme RE 2025, assurant une haute performance énergétique et une maison à étage durable.

Biens similaires

Axces Habitat Constructeur De Maison En Bretagne Logo Axces

Axce’s Habitat 35