Axce’s 59 | 3 chambres & Garage

66 Rue de la Besneraye 35520 Melesse, France

  • Axce's 59 3 chambres
  • Axce's 59 3 chambres
  • Axce's 59 3 chambres
  • Axce's 59 3 chambres

Référence:

 axces59

Chambre(s)
3
SDB/SDE
1
Stationnement(s)
1
Superficie
82

Description

Description
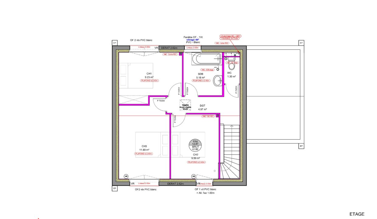
Cette maison 3 chambres de 82 m² habitables (100 m² utiles) propose une organisation intérieure moderne et fonctionnelle, idéale pour une famille en quête de confort et de praticité au quotidien.

Caractéristiques principales :

  • Au rez-de-chaussée :

    • Grande pièce de vie de 41 m² avec cuisine ouverte, offrant un espace lumineux et convivial.

    • WC séparés, pour un usage pratique au quotidien.

  • À l’étage :

    • Trois chambres confortables, parfaites pour une famille ou pour accueillir un bureau et des invités.

    • Salle de bains fonctionnelle.

    • WC séparés, pour plus de confort.

  • Cette maison 3 chambres est pensée pour offrir un équilibre optimal entre intimité et espace commun.

  • Chauffage par pompe à chaleur, combinant confort thermique et économies d’énergie.

  • Construction conforme à la norme RE 2020, assurant performance énergétique et respect de l’environnement.

Situer le bien

Biens similaires

Axces Habitat Constructeur De Maison En Bretagne Logo Axces

Axce’s Habitat 35